Neither one nor t’Other! (Salford’s proposed Cycle Infrastructure.)

Salford City Council has published the plans for their share of the Greater Manchester’s “Cycle City Ambition Grant”, otherwise know as Velicity 2025. It seems the consultation on the first of three “packages” closed yesterday. Unfortunately I missed that as I only found out about the consultation today.

The “ambition” that the City has is to increase cycling to 10% of trips by 2025. Not exactly a BHAG (Big Hairy Audacious Goal) when compared to other cities around the World, but better than a kick in the teeth, you might think. Unfortunately, the reality is even worse than this weak ambition would suggest. You can find all of the consultation drawings here on the Urban Vision web site. (It seems the drawings for package 1, which is the one featured here,  have now been removed from the web site. I have copies of these if anyone wants to see them.)

When I started to attempt to comment, I have to admit that I just got despondent and gave up. It would be easier to tell them what is not wrong with it than to tell them what is. I get the distinct impression that whoever designed this scheme has never done any cycle training, has probably never even cycled regularly on the roads, and certainly has not bothered to read up on what people are doing in other cities around the World. In fact, they do not even seem to be aware of the UK Government’s existing guidelines on cycle infrastructure, which are pretty poor themselves. The short answer to the question “what’s wrong with it?” is “they just don’t get it!”.

So, I decided just to pick up just a few examples to illustrate a key issue here: the problem that most UK cycle infrastructure is neither one nor t’other. To understand the examples I need to explain what I mean by that.  What I am referring to is the two schools of thought that can be referred to as Separation and Vehicular Cycling. Now I don’t want to get into all the arguments about which is best or right as a basis for investing (or not) in cycling infrastructure, as that has been covered many times all over the place. I see Vehicular Cycling, as taught in the national Bikeability training scheme, as simply the best I can do to improve my safety in those circumstances where I have to share a road with motor vehicles, which is most of the time in this country at the moment. The key point of this in relation to this article is that Bikeability teaches us to ride always in a strong position, about a metre away from the kerb, and to ride in the centre of the lane through junctions, pinch points, areas with bad road surfaces, past parked cars, and many other places.

The only times I should abandon those principles are in places where there is good, useable cycling infrastructure that separates bicycles from motor vehicles and deals very clearly with those situations where there might be conflict, such as at junctions. In this situation, a cyclist would normally ride well away from traffic, and would usually be protected by some physical barrier. Note that there is no in-between here: a cyclist should either be riding well away from traffic (and preferably protected), or should be riding as part of the traffic, often in the centre of the traffic flow, only giving up that position when it is possible for motor vehicles to overtake well away from the cyclist.

The one place a cyclist should never be is in a position close to the left of motor traffic where drivers might be tempted to overtake too close, or where they might not notice the cyclist’s presence and cut across them (the “left hook”) or pull out of a side road in front of them (the “SMIDSY”), or open a car door in front of them, or a range of other common collision situations. So let’s have a look at Salford’s plans for a cycling revolution.


 

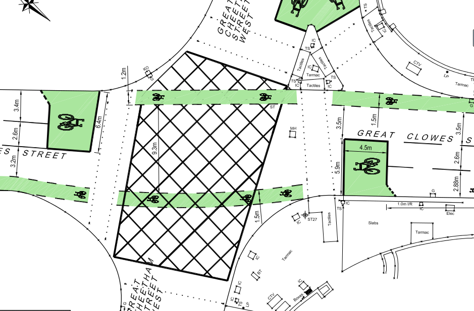
The first one I want to show is the junction between Great Clowes Street and Great Cheethem Street West:

ClowesChethamJunctinThe first thing to notice here is that there is no separation between bicycles and motor vehicles. Both share the same carriageway; paint does not constitute protection. So in this case, the Bikeability principles should apply, and the recommendation for a cyclist travelling in either direction along Great Clowes Street would be to take up a position in the centre of the lane well before the junction, and to maintain that position across the junctions and until a part of the road is reached where it is possible for a motor vehicle to overtake them safely.

Another important point to note here is that the inside lane approaching the junction in both directions will also be a left turn lane. Cyclists should never position themselves on the inside of a left turn lane approaching and through a junction, yet the paint on the road seems to be telling them to do exactly that! The lane going right to left across the junction is also an example of what I have called a Kamikaze cycle lane in another couple of posts.

In addition, it can be seen that the cycle lane is just 1.5m wide – in fact only 1.2m across the junction in the left to right direction. You can also see that the cycle lanes are examples of what is called an “advisory cycle lane”.  I wrote about this in detail in another article, but the main point is that they have virtually no standing in law, and their only purpose is to “advise” motorists on how much space they should give a cyclist. Given that this is an on-road situation, so Vehicular Cycling principles apply, a cyclist should either be riding in the centre of the traffic lane or about 1m from the kerb (if there is space to be overtaken safely). This means that the “advisory cycle lane” is advising motorists to overtake 0.5m from the centre of the cyclist’s wheels – i.e. about 25cm from their right elbow.

Note that 1.5m cycle lanes have been adopted as a standard across pretty much all of the scheme. This is at best a waste of paint and, at worst, a problem for anyone who has been taught to ride properly in traffic through courses such as Bikeability. There will be many places in such a scheme where such a cyclist will be best ignoring the paint on the road and riding according to the Bikeability principles, but the paint on the road will cause some drivers to be angered by this and behave in an aggressive and often dangerous manner as a result, accompanied by raging screams of “get in the f*****g cycle lane”. This is not an exaggeration, as many people who regularly travel by bicycle will be able to testify, as does this video, for example.


 

The next example is taken from the approach to this same junction from the right, and shows the same lack of awareness of good cycling practice in more graphic detail:

CycleSymbolsAs often happens, the cycle lane, inadequate as it is, disappears on the approach to the junction, so bicycles are supposed to share the same traffic lane with motor vehicles. From a Vehicular Cycling point of view, this is actually sensible as any experienced, properly trained regular cyclist will ride in the centre of the lane in this situation. I’m not saying that this is a sensible design option, because it isn’t; I’m just saying that, in the absence of separation, it is best to share the road as an equal. Unfortunately, the idiot (for idiot they must be) who designed this has placed bicycle symbols in exactly the place where a cyclist should not be: on the inside of a left turn lane approaching a junction. I find it hard to believe that someone who is supposed to know what they are doing has actually, deliberately placed these on the drawing in that position! Again, any cyclist who correctly rides in the centre of the lane will find themselves subjected to road rage and aggression on a regular basis.

This one illustrates extremely well the “neither one nor t’other” issue. People who are not cycling now because they are afraid of riding on the roads will not change their minds as long as they have to share traffic lanes in this way with motor vehicles, and people who already cycle and are prepared to mix it with motor vehicles will find that life is made harder for them.


 

Now, let’s have a look at another feature from the same road:

FlaredSideRoadHere we see a side road with a wide flared entrance. The only reason for flaring the entrance like this is so that motor vehicles don’t have to slow down as much to make the turn. The cycle lane along here is what is known as a “mandatory cycle lane” denoted by a solid rather than broken line, which means motor vehicles must not enter the lane except in an emergency. It changes to a broken line across the junction to allow vehicles to make the turn. There is also some small amount of protection for cyclists provided by some barriers and an armadillo. A big problem here is that left turning motor vehicles approaching from the right here will take advantage of the flare on the junction and turn rapidly into the side road (and will wear away the end of the white line over a short period of time). Many of them will try to beat any cyclist who is also approaching the side road and will end up cutting up the cyclist and possibly hitting them. The way for a cyclist to discourage this is to move into the centre of the lane well before the junction so that left turning motor vehicles have to wait behind. The same action makes it less likely that the cyclist will be hit by a vehicle emerging from the side road, who’s driver doesn’t see them. Unfortunately, this will no longer be possible because the barriers will prevent them moving out. Ironically, these barriers don’t protect the cyclist at the place where they really need it: across the junction; their only purpose in practice is to stop the cyclist moving out!

The picture of the barriers and cycle lane, which is again 1.5m wide illustrates another glaring inconsistency in the whole scheme. I mentioned earlier that a stated objective of the Velocity 2025 project, of which this scheme forms part, is to achieve 10% of journeys by bicycle by 2025. But there is no way that 1.5m cycle lanes will accommodate even that unambitious level of cycling, where cyclists will typically be travelling at speeds between 10mph and 25mph, needing frequently to pass one another. This problem would be exacerbated by the rather weak form of separation that is provided in places by so-called “armadillos”, which will stop cyclists even moving out of the cycle lane to overtake,


 

Here, I’ve picked out just a small number of the issues that I can see in just one of the 16 drawings that describe the scheme. The rest of it is just as bad, but I really cannot put in the time to write about every single detailed problem that is in there. Surely, the people who designed this scheme are paid to do this – people who have been to University to learn how to do it properly – aren’t they? I’m just doing it in my spare time (which isn’t really spare), but I don’t need to have done a degree in highway design to see how utterly crap this all is!

What is needed is for a scheme to be designed by someone who knows what they are doing. If the objective is to bring about a cycling revolution, then on-road designs like this will never achieve it and proper separation needs to be implemented, whilst crap on-road designs like this will only make it harder for people who cycle now.

Why doesn’t Salford Council have a look at what’s being planned in London?

This entry was posted in Article, Salford, Space for Cycling. Bookmark the permalink.

5 Responses to Neither one nor t’Other! (Salford’s proposed Cycle Infrastructure.)

  1. John says:

    I didn’t think their plans would increase cycling numbers, but your analysis has shown how it will discourage people who already do cycle! It’s disheartening to see how poorly Salford’s attempt at encouraging cycling and helping the VeloCity 2025 bid is. Surely there is someone at Urban Vision who understands what is needed?!

  2. cscarts says:

    Thank you for taking the time to present a very good analysis of poor design. I hope your comments will still be taken into consideration during the consultation stage?

    • MrHappyCyclist says:

      Hi. They have confirmed that this article is included in the comnsultation, even though I didn’t make the package 1 deadline.

  3. baoigheallain says:

    This is a very good analysis of much that is wrong with UK cycle provision at the moment.

    I happened to read your article this morning before my morning ride and despite knowing better I got caught out by just such pathetic provision. I was climbing a hill on a narrow London street where there is an advisory cycle lane in the gutter. The usual much-too-narrow advisory lane. The road is populated with pedestrian central refuges; one pinch point after the next. A bus came up behind me and because I was climbing slowly I stayed out of his way to the side. When he squeezed past me he actually brushed my right elbow.

    Catching up with him at the next lights he was indignant that I was remonstrating with him. “Do you not think I saw you? Of course I saw you” was his defence. He genuinely believed he did no wrong.

    To hell with where the painted pretend cycle lane is. To hell with the inconvenience to others. The next time I will take the lane for the duration.

  4. John Ackers says:

    That’s the kind of infrastructure (lane painting) that was done in Islington around 1995-2005. As you say it is appalling. The draft (2014) London Cycling Design Standards has some well developed ideas on assessing routes and evaluating interventions https://consultations.tfl.gov.uk/cycling/draft-london-cycling-design-standards. I’d also try to keep the green paint to a minimum as the more paint that’s in the wrong place, the more expensive it is to burn it off and repaint it in the right place (if anywhere).

Leave a Reply

Your email address will not be published. Required fields are marked *